Property Detail
Property Description
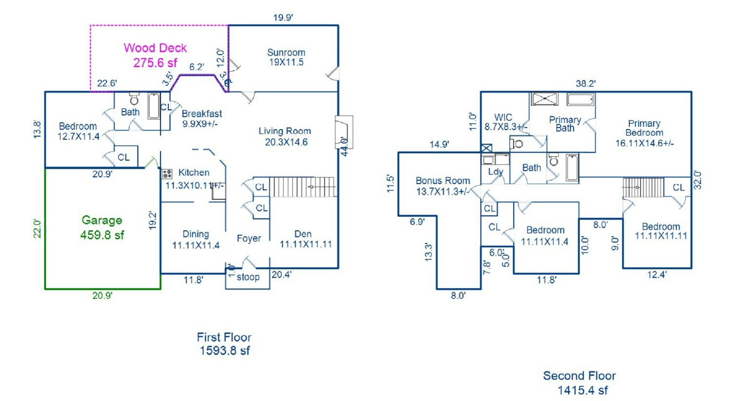
Tucked away on a quiet cul-de-sac in Mint Hill, this full brick home offers a rare blend of space, functionality, and a truly special natural setting. Situated on over an acre, the fenced backyard backs to a gently flowing creek with natural rock features—creating a peaceful, mountain-like retreat right at home. Enjoy your morning coffee or unwind in the evening from the sunroom or spacious deck, both perfectly positioned to take in the sights and sounds of the water. Inside, the home features 4 bedrooms and 3 full bathrooms, including a main-level bedroom and full bath—ideal for guests or multi-generational living. The layout stands out with both a dedicated dining room and a home office offering flexibility that’s hard to find in similar homes. The kitchen is well-appointed with stainless steel appliances, gas range, and a raised eat-in bar. Upstairs, you’ll find a spacious primary suite and bonus room, perfect for additional living or recreation space. Fresh paint and no carpet throughout complete the move-in ready appeal. A rare opportunity for buyers seeking privacy, nature, and a home that truly feels like a retreat.































































































